Welded and Knockdown (3 piece) Frames
ABC Fire Door carries a large selection welded and 3 piece knock down frames. Along with common standard sized frames, we specialize in manufacturing custom frames to suit any custom wall thickness or opening.
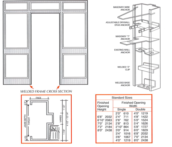
Welded Frames
ABC carries a variety of standard 16- and 18-gauge metal frames. Most common stock welded frames sold are 3’0 x 7’0 and 3’2 x 7’0 and 6’0 x 7’0, with a 5-7/8” jamb size. These welded frames are available with a standard strike prep, standard strike prep and dead lock prep above, or blank with a panic bar reinforcement in the soffit.
Our frames can also be prepped with dimpled holes for tapcon screws or for existing masonry sleeve bolts.
We also specialize in manufacturing custom welded frames to suit the needs of our customers. Our production team at ABC has up-to-date CNC machines and brake presses, with the proper tooling, to create a wide variety of frame profiles and sizes.
Knockdown (3 piece) Frames
ABC Fire Door Standard knockdown frames are designed for easy installation in drywall partition systems, after the walls have been erected. Their fabrication ensures a tight fit, positive anchoring and precise square and plumb field assembly.
Specifications:
- 16-gauge (1.6 mm) or 18-gauge (1.2 mm) galvanneal steel.
- For use with 1 ¾ (45 mm) wood or steel doors.
- Available in these standard wall sizes (custom sizes are also available)
- 3-½ | 4-5/8 | 4-7/8
- Prepared for 9/32 silencer holes.
- All jambs come complete with base and centre strap anchors and an adjustable top tension anchor.
- All frames made to ABC’s standard hinge and strike location.
Fire Labeling
- 180-Minutes (masonry only)
- 90-Minutes
- 45-Minutes
Sizes
- Single Door: Maximum size is 4’ x 10’
- Double Door: Maximum size is 8’ x 10’
- Optional: 22-gauge for 1-3/8 door available in three wall sizes- 2 ½”, 3 ½”, 4-5/8”
Metal Windows, Screens and Transom Frames
ABC Fire Door welded frames windows and screens are available as pre-engineered components, fully welded at our facility. They are designed for interior and exterior uses, and can be manufactured to meet your customized requirements. We supply fire-rated and non-fire-rated glass, as well as, custom insulated panels.


